テーマはSKY
星空を楽しむ部屋がルームコンセプト。
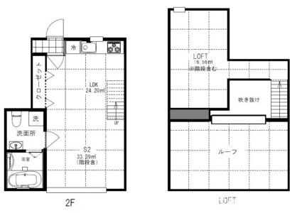
LDKの広さは15畳。
リビングには高さ3.mの大型の高窓付き吹き抜けがあり、高窓の先には湘南の空が広がります。
湘南の太陽と青い空、白い雲といつも一緒に過ごせるLDKです。
水回りの設備は戸建住宅並みのハイグレード仕様にこだわっています。
キッチンは、大型2,100mmサイズ。3口のIHコンロを完備しています。バスは1坪サイズ(1616)で、足を伸ばしてゆっくりと入浴できます。また浴室の窓には逗子の山並みが広がり、夕日を眺めて入浴を楽しんで頂けます。浴室乾燥機も完備。
洗面は、北欧のIKEA製を採用し高い機能性と上質なデザイン性を両立しています。
ロフトは10畳の広さがあります。収納だけではなく、ロフトルームとして書斎、寝室など幅広くご活用下さい。(エアコン完備)
| アクセス | |||||||||||||||||||||||||
| 〒249-0001 神奈川県逗子市久木4丁目13ー21 ・JR横須賀線 逗子駅 東口より 徒歩 約13分 ・京急新逗子駅 徒歩16分 |
|||||||||||||||||||||||||
| 特徴 | |||||||||||||||||||||||||
| 逗子海岸まで徒歩8分 事務所、サロン、物販、カルチャスクールOK ペット可 DIY可 2人入居可 |
|||||||||||||||||||||||||
| 間取 | |||||||||||||||||||||||||
LDK(スタジオタイプ)+ロフト
①LDK 14.94畳 |
|||||||||||||||||||||||||
| 料金 | |||||||||||||||||||||||||
|
|||||||||||||||||||||||||
| 主要設備 | |||||||||||||||||||||||||
|





LDK(スタジオタイプ)+ロフト


