テーマは「Mountain」
プライベートテラスからは葉山の山並みが一望でき、四季折々のうつろいを感じて楽しんでいただけるお部屋です。
夏の夕暮れに蝉しぐれを聞きながら冷たいお飲み物とともに夕涼みを楽しんではいかがでしょうか?

テラスからの夕景
LDKの広さは13帖。たっぷりとした広さのLDKキッチンからは窓先の葉山の家並みを眺めながらお料理を楽しんでいただけます。
キッチンはカウンター式ですので作ったお料理をそのままカウンターでお食事していただくことも可能です。
リビングの天井高は約4mの勾配天井となっておりますので開放的な空間が広がります。この天井にはシーリングファンが装備されていますので葉山の自然の空気を室内でもそよ風にして感じてください。
お部屋の東側には約6帖のルーム1があります。独立した間取りとなっておりますので寝室や書斎としてご活用いただくのはいかがでしょうか?
プライベートテラスへとつながる勾配天井のルーム2は約8帖。リビングとは吹き抜けでつながる空間です。ゆるりと寛ぐスペースとして葉山の風を楽しむお部屋としてご活用いただいてはいかがでしょうか。
水回りの設備は戸建住宅並みのハイグレード仕様にこだわっています。
キッチンは、大型1,800mmサイズ。IHコンロを完備していますのでお掃除も簡単。
バスは1坪サイズ(1616)で、足を伸ばしてゆっくりと入浴できます。
洗面は、北欧のIKEA製を採用し高い機能性と上質なデザイン性を両立しています。
| 間取 | |
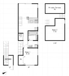
2LDK(58.4m2)+土間エントランス(1.6m2)+専用テラス(6.4m2)=66.4m2![]() |
|
| LDK | 13.0帖 |
| ルーム 1 | 6.2帖 |
| ルーム 2 | 7.5帖 |
| プライベートテラス | 4.0帖 |
| 初期費用 | |
| 敷金 | 0ヶ月 |
| 礼金 | 1ヶ月 |
| 家賃保証料 ※必須 |
0.4ヶ月~(税別) ※個別審査により変動します。 |
| クリーニング代 | 家賃の50%(税別) |
| その他 | 入居者保険必須(別途) |
| 月額 | |
| 家賃 | — |
| 管理費 | 10,000円 |
| インターネット | 無料 |
| ホビーアイテム(土間) | |
| 自転車 | ◯ |
| バイク | 相談 |
| サーフボード | ◯ |
| ウィンドサーフィン | ◯ |
| SUP | ◯ |
| カヤック | ◯ |
| ジェットスキー | ☓ |
| 楽器 | ☓ |
| ペット | |
| 犬 | ◯ ※大型犬、多頭飼育 相談可 |
| 猫 | ◯ ※多頭飼育 相談可 |
| その他 | ☓ |
|
|
| 利用制限 ※要事前相談 | |
| SOHO | ◯ |
| DIY | ◯ |
| サロン | 相談 |
| 物販 | 相談 |
| スクール | 相談 |
| 主要設備 | |||||||||||||||||||||||||||||||||||||||||||||||||||||||||||||||||||||||
|
|||||||||||||||||||||||||||||||||||||||||||||||||||||||||||||||||||||||
| アクセス | ||||||||||||||||||||||
| 240-0113 神奈川県三浦郡葉山町長柄7-5 ・JR横須賀線 逗子駅 バス+徒歩 約10分 ・京急 逗子葉山駅 バス+徒歩 約9分
|
||||||||||||||||||||||


















































